Nabízíme k prodeji prostorný, zděný rodinný dům s velkou terasou a nádherným výhledem na okolní krajinu a řeku Berounku. Dům se nachází v žádané a klidné lokalitě Na Černém vršku v Berouně, která je velmi oblíbená pro kombinaci soukromí, přírody a přitom skvělé dostupnosti do centra města i do Prahy.
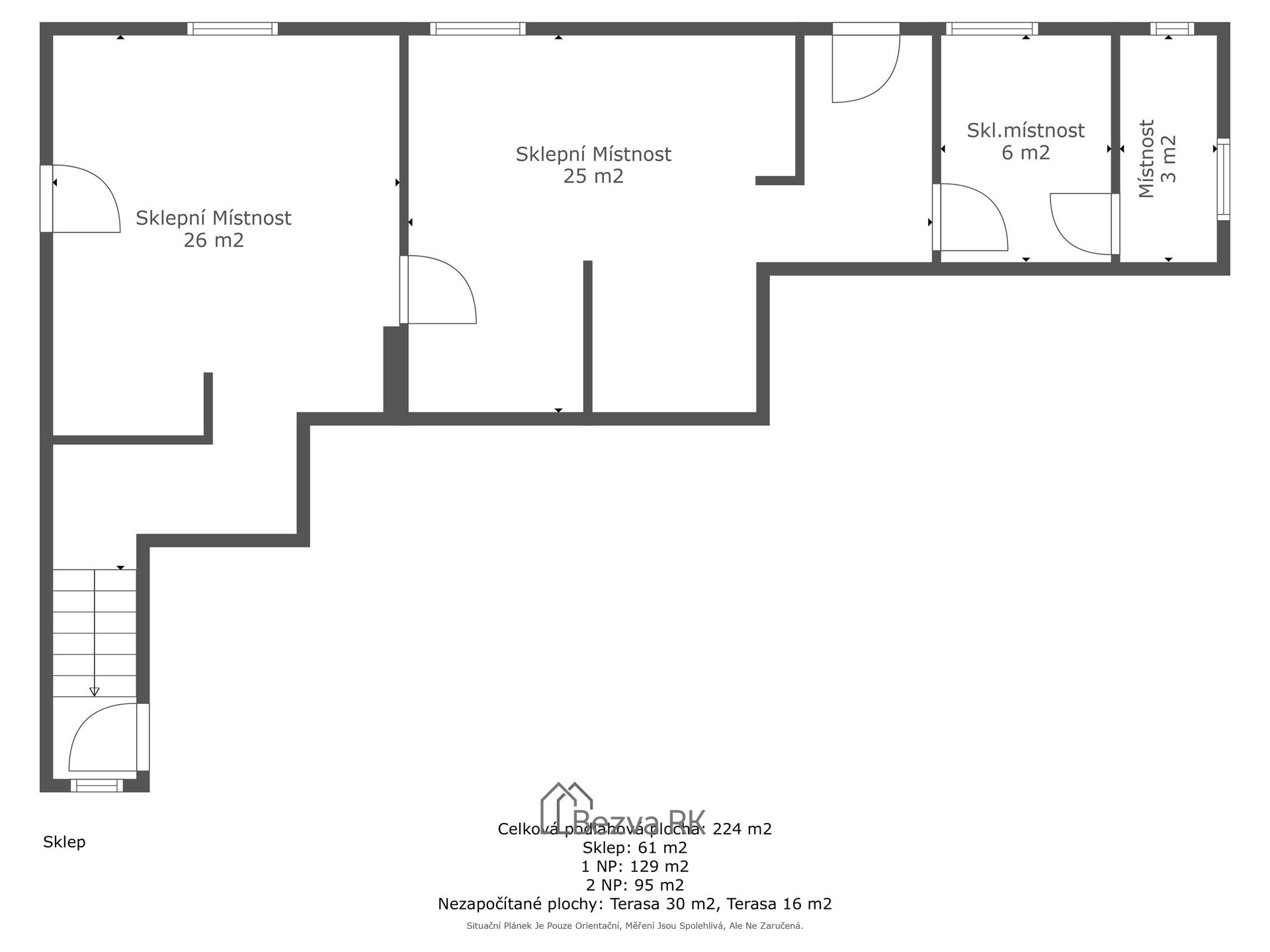
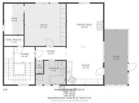
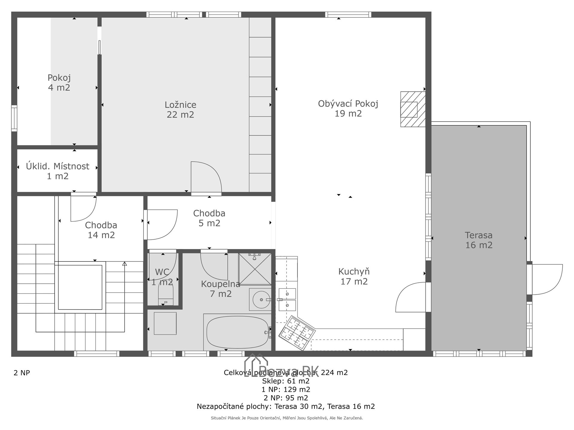
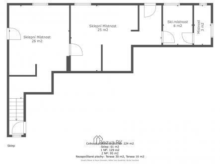
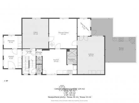
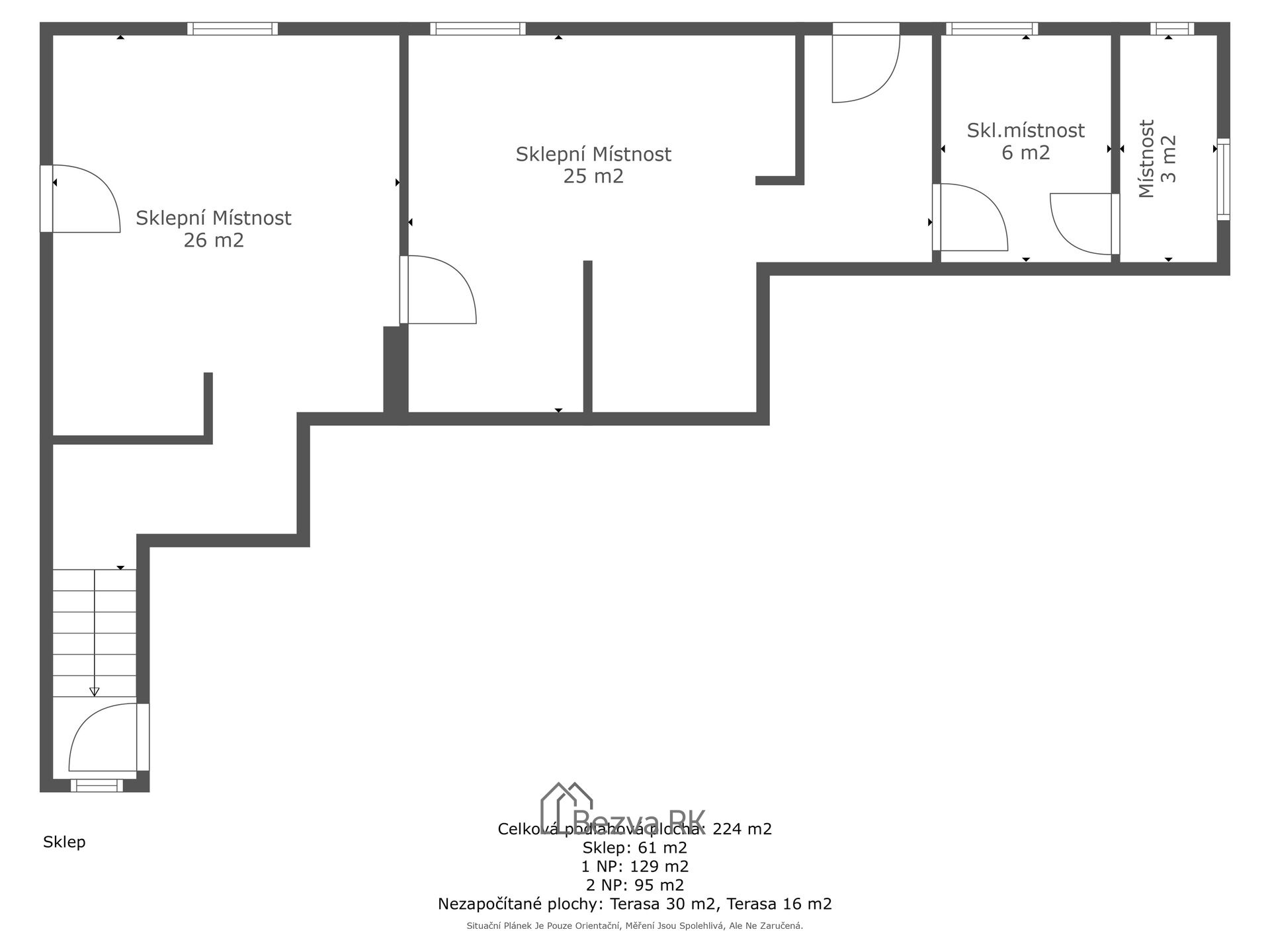
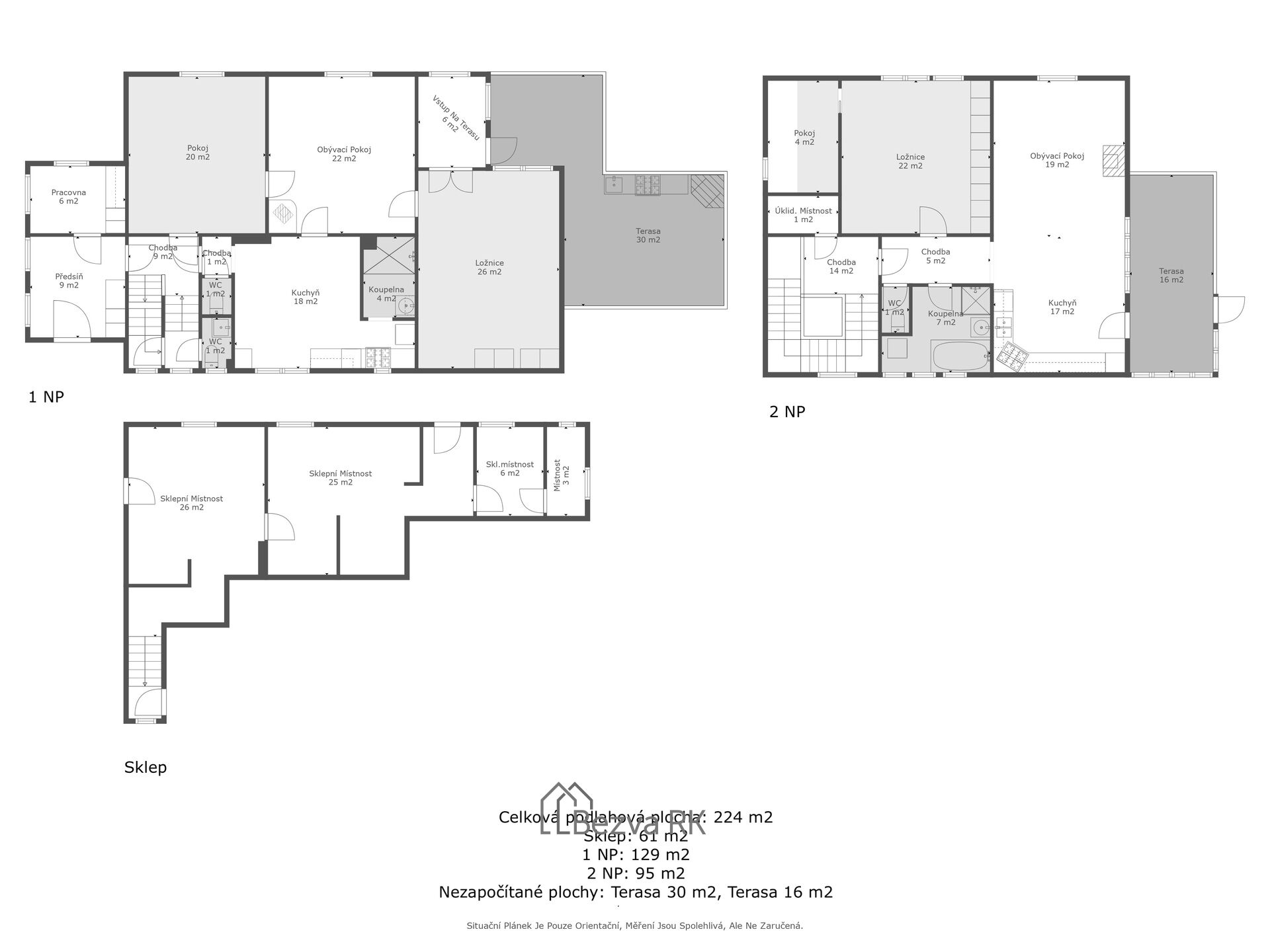
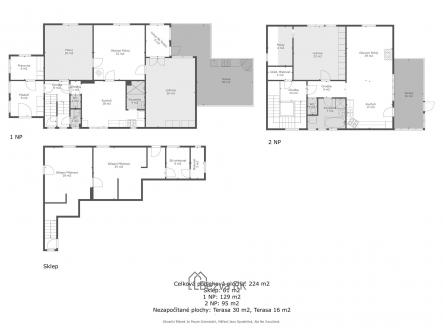
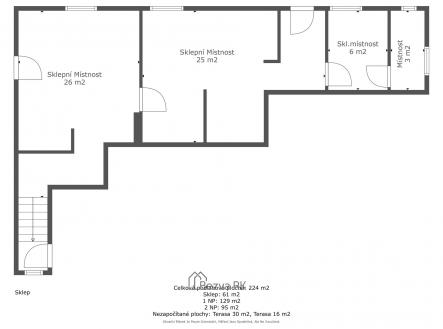
Dům byl postaven v 80. letech a je ve velmi dobrém, udržovaném stavu. Celková podlahová plocha činí 224 m² a nachází se na pozemku o rozloze 542 m².
!!! Značnou výhodou této nemovitosti je velké množství samostatných prostor sloužících jako garáže a autodílna. Tyto prostory je možné odděleně prodat, což nabízí jedinečnou příležitost získat finanční prostředky na modernizaci a rekonstrukci samotného domu.!!!
I v případě prodeje by stále zůstala součástí domu garáž pro min 2 vozy.
Dispozice domu:
Přízemí: bytová jednotka 4+1 s kuchyní, obývacím pokojem, třemi ložnicemi, koupelnou a WC
1. patro: bytová jednotka 2+1 s kuchyní, dvěma pokoji, koupelnou a WC
V každém podlaží je vlastní koupelna a toaleta, což nabízí možnost dvougeneračního bydlení nebo kombinace bydlení a podnikání
Hlavní výhody:
Velká terasa s panoramatickým výhledem na Berounku a okolí
Bazén se solárním ohřevem
Dvojgaráž + autodílna+další pracovní či úložné prostory+velký sklep
Venkovní terasa s kuchyní
Zděný zahradní domek
Bezbariérový přístup díky domovnímu výtahu
Vzrostlé stromy a upravená zahrada poskytující soukromí
Dům je napojen na všechny inženýrské sítě – plyn, vodovod, kanalizaci a elektřinu. Vytápění zajišťuje plynový kotel.
Lokalita Na Černém vršku je výjimečná svojí polohou – kombinace krásné přírody, výhledu a zároveň vynikající dostupnosti (centrum Berouna, nájezd na D5, vlak i veškeré služby v dosahu). Vhodné jak pro klidné rodinné bydlení, tak pro propojení bydlení s podnikáním.
Okolní zástavbu tvoří poze vily podobného charakteru.
Pro více informací nebo domluvení prohlídky mě prosím neváhejte kontaktovat. V případě potřeby financování hypotečním úvěrem Vám samozřejmě velmi ráda pomohu.
- Poloha objektu:samostatný
- Druh objektu:cihlová
- Stav objektu:velmi dobrý
- Počet podlaží v objektu:2
- Typ domu:patrový
- Zastavěná plocha:132 m2
- Užitná plocha:224 m2
- Plocha parcely:542 m2
- Ostatní:Plot; Bezbarierový přístup; Bazén; Garáž; Výtah
- Umístění objektu:klidná část obce
- Doprava:vlak; dálnice; silnice; MHD; autobus
- Elektřina:Elektro - 380 V; Elektro - 400 V
- Voda:Rozvod studené a teplé vody
- Plyn:Plynovod
- Topení:Lokální - plynové
- Odpad:Kanalizace
- Energetická náročnost budovy:G - Mimořádně nehospodárná
- Energetický ukazatel
podle vyhlášky:č. 264/2020 Sb.
