Chata v srdci lesů u Medníku může být Váš budoucí úkryt před shonem velkoměsta...
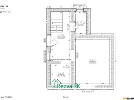
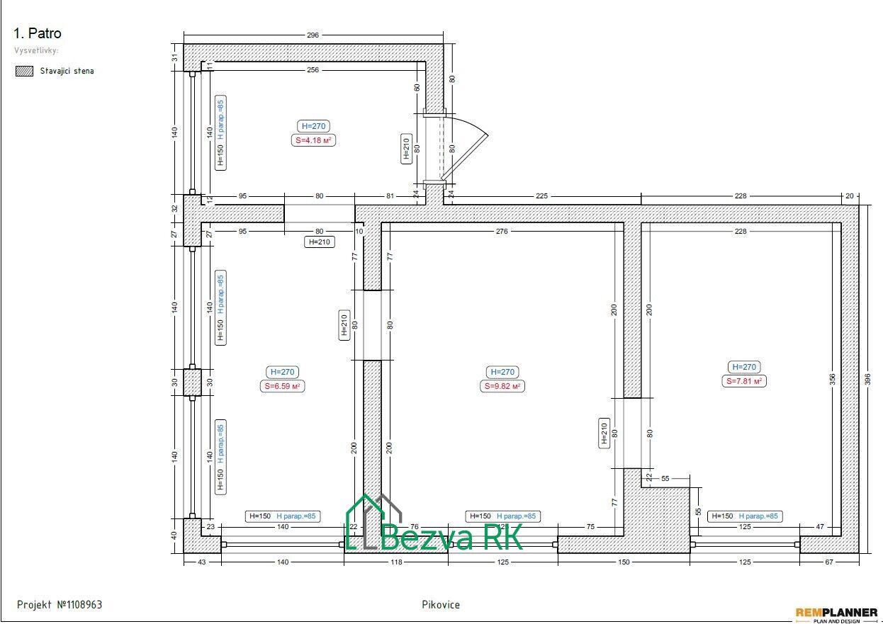
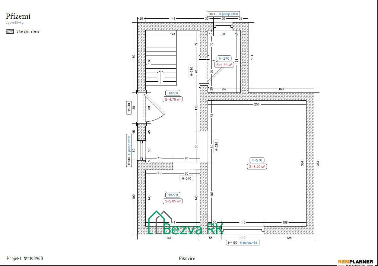
Nabízíme k prodeji částečně zděnou chatu o velikosti zastavěné plochy 36 m² v jedné z nejkrásnějších lokalit středních Čech – v Hradištku pod Medníkem, v těsné blízkosti vyhlášených Pikovic, kousek od soutoku Vltavy a Sázavy.
Nemovitost se nachází na vlastním lesním pozemku o velikosti 474 m², který zajišťuje naprosté soukromí a stín v horkých letních dnech.
Částečně zděná stavba je konstrukčně v pořádku, ale čeká na celkovou rekonstrukci vnitřních prostor.
Chata je připojena na rozvod elektřiny, má vlastní septik.
Voda: Aktuálně pouze dešťová. Pro plnohodnotný komfort je nutné vybudovat vlastní vrt (v okolí běžné řešení).
Naprosto bezproblémový příjezd po asfaltové obecní komunikaci až na pozemek – vzácnost v této lesní lokalitě!
Jen 30 km z Prahy. Za půl hodiny z centra vyměníte hluk města za ticho lesa. Pikovice jsou rájem pro vodáky, turisty i milovníky historie (Posázavský pacifik, stezka Medník).
V Pikovicích se od vyznačeného místa v ulici Pod Medníkem nachází nejdůležitější body zájmu v následujících vzdálenostech:
Řeka Sázava je vzdušnou čarou zhruba 300 metrů směrem na sever. K veřejnému tábořišti u břehu dojdete po cestě za cca 5–7 minut.
Přímo v centru obce (cca 350 metrů daleko) je Restaurace U Dolejších, kde sídlí i místní pivovar Pikovar. V samotných Pikovicích je menší sezónní prodejna potravin u tábořiště. Celoroční větší obchod (Můj obchod) se nachází v sousedním Hradištku, což je přibližně 3 km cesty autem nebo autobusem.
Chata se nachází v klidné části na úpatí vrchu Medník, přičemž veškerá základní vybavenost obce je v docházkové vzdálenosti do 5–10 minut chůze.
Pro bližší informace či prohlídku kontakujte makléřku nabídky.
- Celková plocha:45 m2
- Zastavěná plocha:36 m2
- Užitná plocha:45 m2
- Plocha parcely:474 m2
- Druh objektu:smíšená
- Stav objektu:před rekonstrukcí
- Počet podlaží v objektu:1
- Umístění objektu:polosamota
- Elektřina:Elektro - 230 V
- Předzahrádka:474 m2
